COPYRIGHT © 2013, ALL RIGHTS RESERVED

ARCHITECT

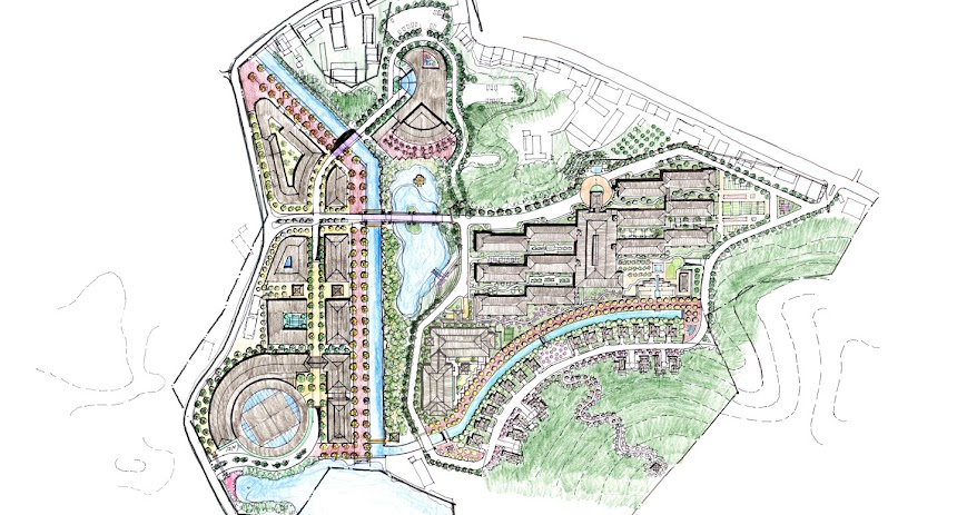
CONTINUING CARE RETIREMENT COMMUNITY (CCRC)

 

GUIZHOU PROVINCE, CHINA

COMPLETED IN 2012 - ASSISTANT DESIGNER / VISUALIZATION

 

This Continuing Care Retirement Community (CCRC) was master-planned for the community of Guizhou in the province of Guizhou, Fengang in China.  The overall master plan included provisions for a 300-bed dwelling unit Independent Living Facility, a 100-bed Assisted Living Facility, as well as a Skilled Nursing and Memory Care component.  The overall development plan also included retail, hospitality zones, as well as a community center.  China has started to adapt its senior living design towards the Western model as more and more of its population reaches retirement age.  This master plan is still seeking funding and construction hopes to begin in Spring 2015.